skip to main
|
skip to sidebar
الرسم الميكانيكى ...
السلام عليكم ورحمة الله وبركاته هنا تجد شرح لامثلة مختلفة وعرض تمارين متعددة من كتب ومراجع ومن خلال البحث عبر النت لنقدم لك كل ما هو جديد ومفيد اهلا بيك
بسم الله الرحمن الرحيم
عزيزى الطالب ...
اتمنى ان تستفيد من المدونه ...
نفعنا الله واياكم بالعلم والعمل الصالح ...
تحياتى ..
م/ على عبد المجيد
abolobna_ali@yahoo.com
الرياض - السعودية
0595923021
ـــــــــــــــــــــــــــــــــــــــــــــــــــــــــــــــــــــــــــــــــــــــ
المراجع ....
المواقع الهندسية على الانترنت .
Exercises in Machine Drawing.
Engineering Drawing For Techicians v.i.o.
Disegno Tecnico.
___________________________
الأحد، 14 فبراير 2010
Pipe Vice
Swivel bearing
Bearing Pedestal
assembly1
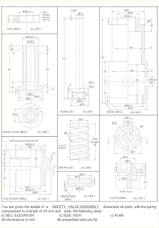
Safety Valve2
Safety valve1
Vice 1
PullyAssembly
كرسى تحميل
ملزمة يدوية
ملزمة حديد قص
ملزمة مواسير
بكرة
مفتاح راديو
مربط U
موجة تثقيب
وصلة عامة
ذراع توصيل
رافعة
حامل بكرة
Control Handle
Caster
السبت، 13 فبراير 2010
Eccentric Assembly
Eccentric Assembly
Detailed view of Component parts are given
for an eccentric in Fig
Draw the following
. Sectional Front View
. R. H. S. View
. Top View Also draw the parts list
Expansion Joint
Expansion Joint
Two views of Expansion joint are given in fig .
Draw F. V.
and T. V.
of Parts A, B and C.
Vee Blook And Clamp
Guide Roller
CrankShaft
Journal Bearing
Knuckle Joint
screw Jack2
Assembly of Screw Jack
The details of screw jack are given in figure
. Assemble the parts and draw.
a. Full Sectional front view
b. Top view.
screw Jack
Vice1
صمام عدم رجوع
الجمعة، 12 فبراير 2010
StuffingBox علبة مشاق
الثلاثاء، 9 فبراير 2010
طارة تشغيل .....
رسائل أحدث
رسائل أقدم
الصفحة الرئيسية
الاشتراك في:
التعليقات (Atom)
من أنا
abolobna_ali
كن في الطريق عفيف الخُطى *** شريف السماع كريم النظر وكن رجلاً إن أتوا بعده *** يقولون مرّ وهذا الأثر ....
عرض الملف الشخصي الكامل الخاص بي
أرشيف المدونة الإلكترونية
▼
2010
(45)
▼
فبراير
(45)
Pipe Vice
Swivel bearing
Bearing Pedestal
assembly1
Safety Valve2
Safety valve1
Vice 1
PullyAssembly
كرسى تحميل
ملزمة يدوية
ملزمة حديد قص
ملزمة مواسير
بكرة
مفتاح راديو
مربط U
موجة تثقيب
وصلة عامة
ذراع توصيل
رافعة
حامل بكرة
Control Handle
Caster
Eccentric Assembly
Expansion Joint
Vee Blook And Clamp
Guide Roller
CrankShaft
Journal Bearing
Knuckle Joint
screw Jack2
screw Jack
Vice1
صمام عدم رجوع
StuffingBox علبة مشاق
طارة تشغيل .....
محبس تصفية .....
Shaft Bracket
Gear Fixture
MACHINE VICE
التمرين الخامس TAP
التمرين الرابع كرسى محور ....
التمرين الثالث المفصلة الميكانيكية ....
التمرين الثانى ... تجميع حامل طاره حرة ......
التمرين الاول ... تجميع كرسى متارجح
مقدمة عن الرسم التجميعى ...